Maison 6 pièce(s) 3 chambre(s) 122 m²
Bilan énergétique
Diagnostics énergetiques- Surface 122 m²
- terrain 224 m²
- séjour 29 m²
- 3 chambre(s)
- 1 salle(s) d'eau
- Chauffage individuel : autre (autre)
- 1 garage(s)
- -1 côté(s) mitoyen(s)
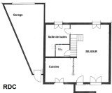
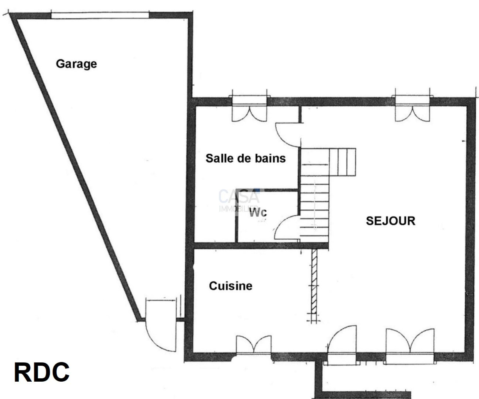
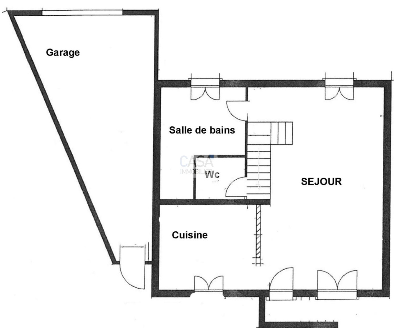
Composition
Composition de ce bienEtage -1
- salle de jeux 24.8 m²
Rez-de-chaussée
- chambre 1 10.78 m²
- bureau 6.8 m²
- sl+sj+cuis. us 35.88 m²
- wc 2.44 m²
- palier 1 m²
- 9 m²
- wc 2 m²
- chambre 2 14.6 m²
- chambre 3 13.8 m²
- garage atelier m²
Etage 1
- palier 1 m²

