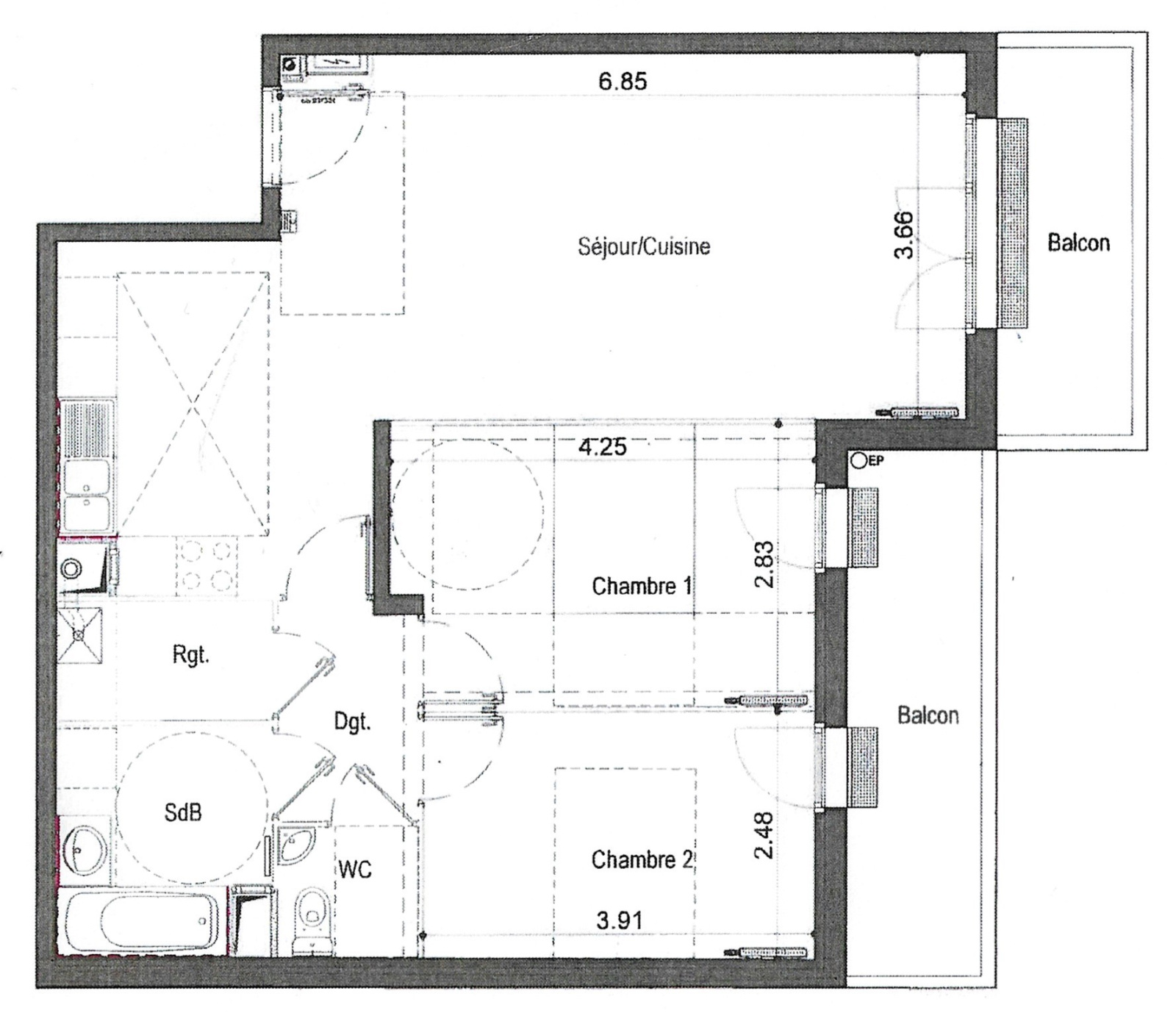
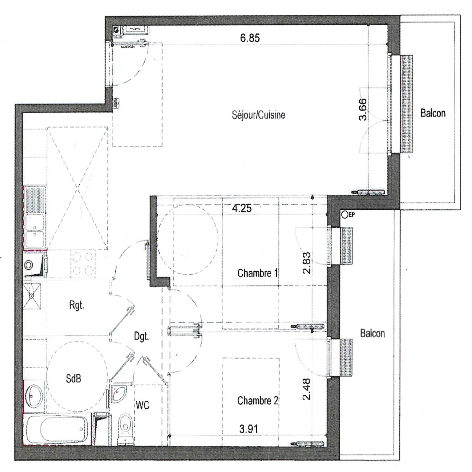
DRANCY centre-ville, proche "4 routes", CASA Immobilier vous propose en Exclusivité dans une résidence de 2016, cet Appartement type F3 de 67.03 m² avec Terrasse de 7 m² + Balcon de 5 m² + Parking en sous-sol :
Entrée, séjour de 20 m² donnant sur balcon, cuisine américaine équipée, 2 chambres (11.66 m² et 9.55 m²) donnant les 2 sur une terrasse, grande salle d'eau, wc séparés, dressing-buanderie avec chaudière gaz, 1 place de parking en sous-sol (possibilité d'une 2ème place de parking). Ascenseur. Normes PMR. Au pied de toutes les commodités. Vue sur zone pavillonnaire, exposition sud-ouest. Découvrez cet Appartement dès maintenant grâce à sa Visite Virtuelle 360° disponible sur le site de Casa Immobilier.
Classe Energie : C.
Bien soumis au statut juridique de la Copropriété.Charges annuelles de copropriété (Montant moyen annuel quote-part du budget prévisionnel vendeur) : 1598.64€.
Honoraires charge vendeur. Agent Immobilier
Les informations sur les risques auxquels ce bien est exposé sont disponibles sur le site Géorisques : www.georisques.gouv.fr


 
                 
                                         
                                         
                                         
                                         
                                         
                                         
                                         
                                         
                                         
                                         
                                         
                                     
                                     
                                     
                                     
                                     
                                     
                                     
                                     
                                     
                                     
                                     
                                 
                                 
                                 
                                 
                                 
                                 
                                 
                                 
                                 
                                 
                                